QUALIFICATIONS

BayHealth Ambulatory Surgery Center

3100 San Pablo Ave

Berkeley, CA

Laser Scanning Reveals Critical Elevation Difference for ADA-Compliant Entry

PROJECT DESCRIPTION

Accurate existing condition data is critical when modifying building entrances—especially when accessibility requirements are involved. Even small discrepancies in elevation between interior and exterior surfaces can significantly affect the design of ADA-compliant access.

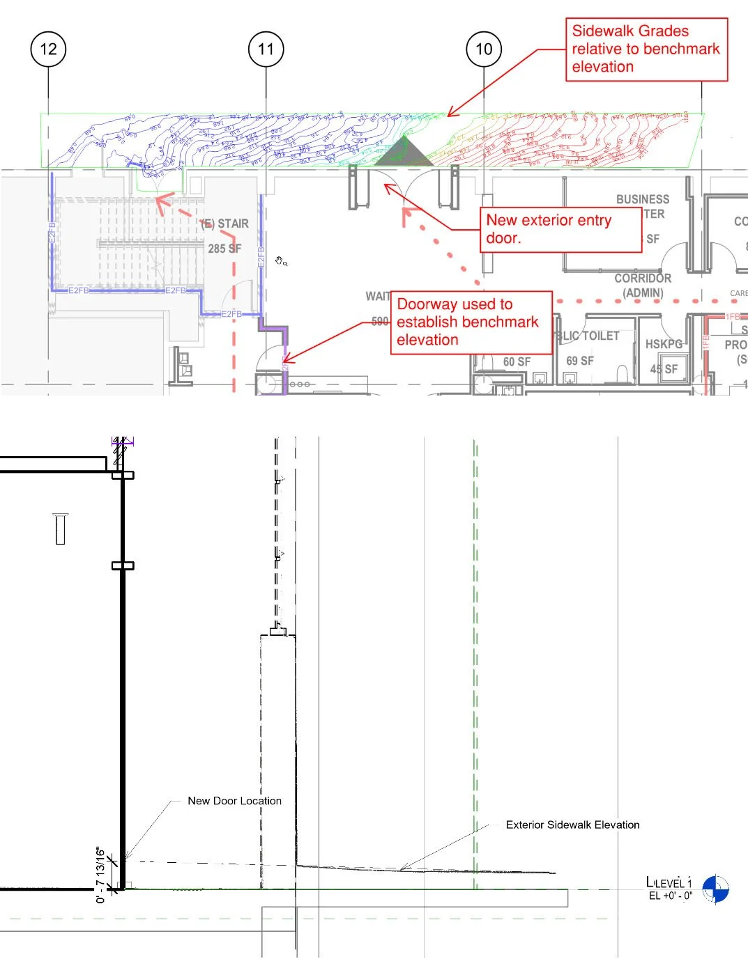
During the early design phase of the BayHealth Ambulatory Surgery Center project, laser scanning was used to verify elevation differences between the interior floor and exterior sidewalk where a new entry door was planned. The scan provided precise measurements that allowed the design team to adjust the project before finalizing construction documents and project budget.

IDENTIFYING ISSUES WITH EXISTING SURVEY DATA

After being awarded the project, Truebeck Construction received a laser scan from the client intended to document existing conditions. However, the team quickly discovered that the point cloud had not been properly registered, making it unsuitable for performing a reliable floor flatness study or validating elevation differences.

Because the project required the addition of a new exterior door, the team needed accurate information about the grade difference between the interior floor and the exterior sidewalk.

A previous civil engineering study estimated the exterior sidewalk elevation to be approximately 5 inches higher than the interior floor.

Without reliable scan data, the team could not confidently validate that assumption.

Truebeck brought in Siteline to perform a new scan of both the interior space and exterior façade to establish accurate elevations.

CAPTURING PRECISE FIELD CONDITIONS

Siteline used a Leica RTC360 laser scanner to capture detailed scan data of the project area.

Before each scan, the scanner was carefully leveled to ensure accurate elevation measurements. The team scanned both the interior and exterior areas surrounding the proposed door location to capture the full transition between spaces.

After scanning was completed, the team established a specific location on the interior floor as the benchmark elevation. The scan data was then properly registered and elevated to create a reliable dataset.

Siteline delivered the following to the project team:

  • A fully registered point cloud

  • A topographic survey generated using Rithm for JetStream

These deliverables allowed the team to accurately analyze the relationship between the interior slab and the exterior sidewalk.

DISCOVERING A LARGER ELEVATION GAP

Once the scan data was analyzed, the team discovered that the original estimate was incorrect.

Instead of the 5-inch elevation difference identified in the previous study, the scan revealed that the exterior sidewalk was actually closer to 7 inches higher than the interior floor.

While the difference may seem small, it had important implications for accessibility design.

ADJUSTING THE DESIGN FOR ADA COMPLIANCE

Because the elevation difference was greater than originally anticipated, additional modifications were required to create an ADA-compliant entrance.

By identifying the issue early in the design phase, the team was able to collaborate and develop a constructible solution that met accessibility requirements before the design was finalized.

PROJECT IMPACT

Siteline’s involvement early in the BayHealth Ambulatory Surgery Center project provided the team with accurate data when it mattered most—during design and budgeting.

By validating real-world conditions early, the project team was able to:

  • Identify an incorrect elevation assumption

  • Adjust the design to meet ADA accessibility requirements

  • Develop a constructible solution during design

  • Incorporate necessary changes before establishing the GMP

Capturing accurate field data early in a project reduces uncertainty and allows teams to resolve issues before they become costly construction challenges.